売買物件
- トップページ
- 売買物件
- エリアの大型分譲地内不動産物件一覧
- 山武市松尾町八田5LDK中古住宅 2023年2月中旬リフォーム済
- 売買
- 中古住宅
- 松尾駅1.8km
山武市松尾町八田5LDK中古住宅 2023年2月中旬リフォーム済
山武市松尾町エリアの敷地広々約388坪!各種リフォーム済5LDK中古住宅!
大手ハウスメーカー「一条工務店」施工・43.86坪の広々としたお住まいです。
しかも、内外装ピカピカ!
2023年2月中旬各種リフォーム済です。
新品の食洗機付のキッチンとウォシュレット付トイレに交換済!
成田空港まで車で25分!・横芝光I.C.まで3.7㎞と各地へアクセス良好な立地も魅力!
交通アクセスJR総武本線松尾駅1.8km
物件概要のんびり田舎暮らしに!敷地388坪の大型5LDK中古住宅
| ポイント | 大手ハウスメーカー施工・閑静な住宅街・陽当たり良好 | ||
|---|---|---|---|
| 築年月 | 1995年10月 | ||
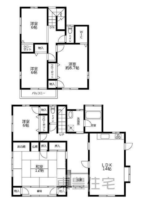
| 間取り | 5LDK(LDK14・和室12.0・洋室8.7・洋室6.0・洋室6.0・洋室6.0) | ||
| 設備・水廻り | バス1坪以上・トイレ2ヶ所・温水洗浄便座・ウォークインクローゼット・LPG・公営水道 | ||
| その他 | 即時可 | ||
| 物件種目 | 中古一戸建て | 取引態様 | 仲介 |
| 価格 | 2,980万円 | 都市計画 | 非線引 |
| 所在地 | 山武市松尾町八田 | 用途地域 | 無指定 |
| 交通 | 総武本線松尾駅1.8km | 建ぺい率 | 60% |
| 建物面積 | 145.00m² | ||
| 土地面積 | 1285.36m² | 容積率 | 200% |
| 私道部分 | 別途有 | 法令上の制限 | |
| 接道状況 | 南西側約3.1m公道、北東側約2.7m市道 | 地目 | 宅地 |
| 土地権利 | 所有権 | 現況 | 空家 |
| 設備概要 | 公営水道・LPG・浄化槽 | 構造 | 木造瓦葺2階建て |
| 引渡日 | 相談 | ||
| 駐車場 | 多数 | ||
物件ギャラリー
CONTACT この物件の内見の
ご予約・お問い合わせ・ご相談はこちらから
電話受付時間:9:00〜17:00
(水曜・木曜定休)
-
売買・中古一戸建て内外装リフォーム済・駐車場2台可
価格:1,680万
土地面積:220.40m²
建物面積:106.82m²
-
売買・中古一戸建て積水ハウス施工の大型6LDK中古住宅
価格:3,980万
土地面積:1011.59m²
建物面積:243.25m²
-
売買・中古一戸建て田舎暮らしに最適な敷地広々3LDK
価格:680万
土地面積:323.13m²
建物面積:82.38m²
-
売買・中古一戸建てファミリー向け賃貸2棟の収益物件
価格:1,280万
土地面積:277.49m²
建物面積:2棟×51.34m²
-
売買・中古一戸建てサーファーズハウス向けのコンパクトな平屋建て
価格:580万
土地面積:130m²
建物面積:39.33m²
-
売買・中古一戸建て水廻り各種リフォーム済の5DK
価格:690万
土地面積:183.41m²
建物面積:96.87m²
-
売買・中古一戸建て2019年8月水廻り&LDKフルリフォーム済
価格:1,490万
土地面積:1029.93m²
建物面積:153.36m²
-
売買・中古一戸建て九十九里浜までクルマで5分!ほぼ未入居の平屋建て3DK!温暖な気候で穏やかな田舎暮らし♪
価格:1,198万
土地面積:165.40m²
建物面積:64.82m²
-
売買・中古一戸建て閑静な住宅街の4LDK・バリアフリー仕様の一戸建て
価格:1,630万
土地面積:175.42m²
建物面積:111.99m²









